Italiano
198.000 €

Gallarate - Trilocale con doppi servizi, 2 balconi e box doppio,

Appartamento in vendita • Gallarate (Madonna in Campagna) - via Madonna in Campagna , 43
Vivere la comodità, ogni giorno.
In una zona residenziale tranquilla e servita, proponiamo un appartamento che unisce comfort, funzionalità e spazi pensati per la vita quotidiana.
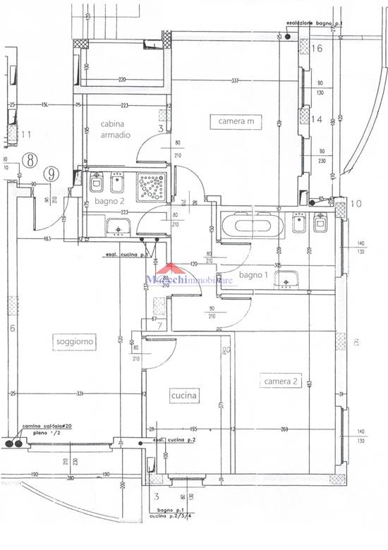
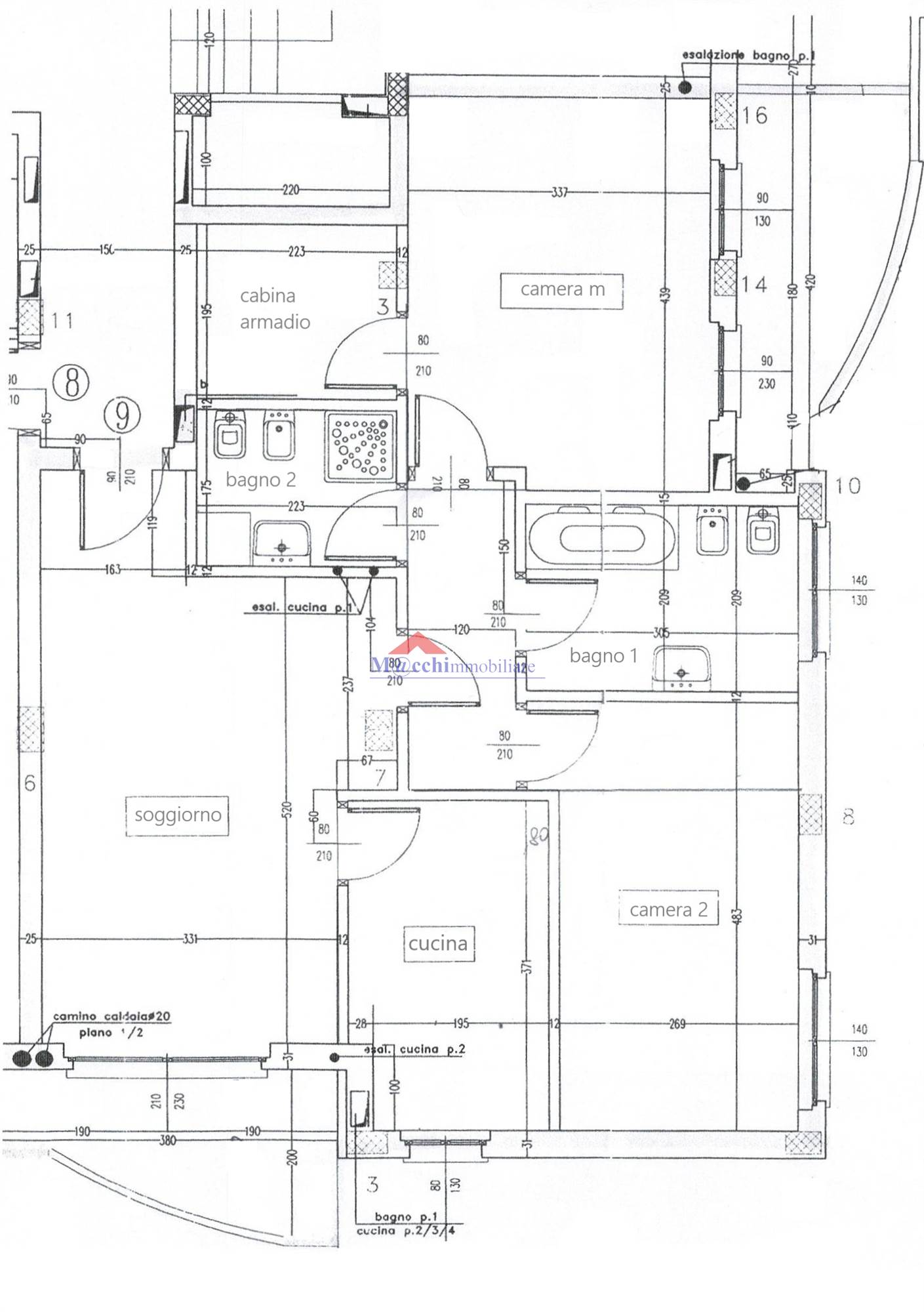
Situato al secondo piano su 6 con ascensore, composto da: l’ingresso con porta blindata che introduce a un’abitazione accogliente e luminosa. Il soggiorno ben esposto, è il cuore della casa, ideale per momenti di relax e convivialità. La cucina separata permette di vivere gli spazi in modo ordinato e pratico.
La zona notte offre una camera matrimoniale con cabina armadio, perfetta per chi desidera spazio e ordine, una camera singola, due bagni – uno con doccia e uno padronale con vasca – pensati per garantire comfort a tutta la famiglia.
I due balconi regalano luce naturale e sfoghi esterni vivibili. Completano la proprietà una ampia cantina e un box doppio di 32 mq, un valore aggiunto raro e prezioso.
Una casa pronta da vivere, ideale per chi cerca tranquillità senza rinunciare alla comodità dei servizi.
L’immobile viene proposto arredato, offrendo la possibilità di entrare da subito in una casa curata e funzionale; l’arredamento è oggetto di trattativa separata con la proprietà, permettendo massima flessibilità in base alle esigenze dell’acquirente. Riscaldamento Autonomo, antifurto. Classe D €. 198.000,00
Per ulteriori informazioni o per fissare una visita, non esitare a contattarci.
Tel. 335/1881188
Caratteristiche principali
Codice
V000777
Città
Gallarate (Madonna in Campagna)
Categoria
Appartamento
Prezzo
198.000 €
Spese condominiali
1.200 € / anno
Locali
3
Camere
2
Bagni
2
Mq
104
Box
1
Mq Box
32
Balconi
2
Mq Balcone
12,6
Piano
2
Classe energetica
D
Stato Immobile
Ottimo
Grado
Medio
Posizione
Periferia
Panorama
Vista Aperta
Orientamento
Est Sud Ovest
Lati Liberi
2
Giardino
Comune
Arredi
Arredato
Tipo Soggiorno
Soggiorno
Tipo Cucina
Abitabile
Riscaldamento
Autonomo
Tipo Riscaldam.
Caldaia
Tipo Impianto
Radiatori
Fonte Energetica
Metano
Acqua Calda
Autonoma
Infissi
Legno Doppio Vetro
Serramenti
Ottimo
Persiana
Tapparella PVC
Pavim. Giorno
Parquet
Pavim. Notte
Parquet
Pavim. Cucina
Ceramica
Pavim. Bagno
Ceramica
Accesso Disabili
Nessuna Barriera
Accesso interno disabili
Pieno accesso

Accessori: Antifurto, Armadio a Muro, Ascensore, Cancello Elettrico, Doppi Vetri, Impianto Satellitare, Parco Condominiale, Porta Blindata, Video Citofono

Distanze
Posizione
Centro1,8 km
Parco pubblico200 m
Istruzione
Scuola materna550 m
Scuola elementare650 m
Scuola media950 m
Mezzi di trasporto
Aeroporto2,6 km
Colonnina EV850 m
Stazione di servizio900 m
Stazione dei treni2,1 km
Altri servizi
Banca1,2 km
Chiesa950 m
Farmacia500 m
Ospedale1,2 km
Supermercato500 m
Mappa
via Madonna in Campagna 43, Gallarate (VA)
Cookie preference